Address
Brighton Ontario
Westgate Brighton is a new low-rise residential community development by Stalwood Homes. Prices are estimated to be starting from the mid $500,000s and the development will feature a collection of low-density homes across multiple phases.
Westgate Brighton is nearby Presqu’ile Provincial Park and Highway 401. The project is estimated to be completed in 2026 and will be located on Ontario Street in the Brighton neighbourhood of Brighton.
Westgate Brighton is ideally situated in Brighton, offering a refined balance of peaceful small-town charm and everyday convenience. Surrounded by natural beauty and just moments from Lake Ontario, the community provides an inviting lifestyle rooted in tranquility while remaining connected to essential amenities.
Brighton Ontario
Brighton Ontario
Stalwood Homes is a residential builder established in 2006, focused on delivering thoughtfully designed communities with an emphasis on quality over volume. The company has built its reputation on a hands-on approach to construction, prioritizing durable materials, careful craftsmanship, and consistent attention to detail throughout each stage of the building process. Its homes are designed with practical, livable layouts and include a range of standard features that are often considered upgrades by other builders, reflecting a commitment to long-term value.
Stalwood Homes has maintained a steady approach to growth, concentrating on low-density developments that support cohesive neighbourhood character and functionality. The builder continues to emphasize construction integrity and reliability, ensuring that each home is built to perform well over time. This consistent focus has positioned the company as a dependable contributor to well-established and emerging residential communities.
| Model | Bed | Bath | SqFT |
|---|---|---|---|
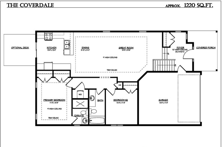
| Coverdale Bungalow | 2 | 2 | 1,220 sq.ft |
| Abott Bungalow | 2 | 2 | 1,254 |
| Abott Raised Bungalow | 2 | 2 | 1,254 |
| Wilmott Bungalow | 2 | 2 | 1,380 |
| Semi-detached Bungalow | 2 | 2 | 1,130 |
| 2-storey Semi Detached | 3 | 2 | 1,576 |
| Coronation 2 Storey | 3 | 2 | 1,737 |
| Cottesmore | 3 | 2 | 1,990 |
| Fitzhugh 2 Storey | 4 | 3 | 2,100 |


















| Plan | Suite Name | Suite Type | Bath | SqFT | Terrace | Exposure | Availability | |
|---|---|---|---|---|---|---|---|---|
|
Coverdale Bungalow | 2 | 2 | 1,220 sq.ft | - | - | - | Reserve Now |
|
Abott Bungalow | 2 | 2 | 1,254 | - | - | - | Reserve Now |
|
Abott Raised Bungalow | 2 | 2 | 1,254 | - | - | - | Reserve Now |
|
Wilmott Bungalow | 2 | 2 | 1,380 | - | - | - | Reserve Now |
|
Semi-detached Bungalow | 2 | 2 | 1,130 | - | - | - | Reserve Now |
|
2-storey Semi Detached | 3 | 2 | 1,576 | - | - | - | Reserve Now |
|
Coronation 2 Storey | 3 | 2 | 1,737 | - | - | - | Reserve Now |
|
Cottesmore | 3 | 2 | 1,990 | - | - | - | Reserve Now |
|
Fitzhugh 2 Storey | 4 | 3 | 2,100 | - | - | - | Reserve Now |