Address
1682 Victoria Park Avenue, North York
The Vic Towns is a new condo development by Solotex Corporation. Prices for remaining homes starting from $454,900+. The Vic Towns is estimated to be completed in 2025 and will be located on 1682 Victoria Park Avenue in North York. The Vic Towns will also have nearby public parks for the community such as Wexford Park and will also include transportation options such as Kennedy GO Station.
Indulge in the epitome of modern urban living at The Vic Towns, where luxury meets convenience in every detail. Step into spacious suites adorned with high-quality finishes, beckoning you to relax and unwind in style. Venture outdoors to your own private oasis, where tranquil moments await amidst lush surroundings. With seamless access to nearby transit options and major highways, every journey becomes effortless, promising boundless exploration and adventure. Welcome home to The Vic Towns, where every moment is an invitation to embrace the extraordinary.
The Vic Towns by Solotex Corporation is situated in the heart of Victoria Village, a well-established and family-friendly neighbourhood in North York, Toronto. Nestled on Victoria Park Avenue between Lawrence Avenue and Eglinton Avenue, this intimate enclave offers a tranquil living experience while being conveniently close to various amenities and transportation options.
Location Description:
Transit Options:
Nearby Parks and Entertainment:
1682 Victoria Park Avenue, Toronto
1682 Victoria Park Avenue, North York
Solotex Group is a distinguished developer renowned for its visionary approach in crafting luxury homes characterized by uncompromising quality, enduring value, and contemporary design. With a rich legacy spanning over 17 years, the company has garnered acclaim for its expertise in acquiring and rezoning land in handpicked Toronto neighbourhoods to create innovative infill developments. Solotex Group's hallmark lies in its collaborative ethos, working closely with municipal authorities to secure swift project approvals while upholding the highest standards of craftsmanship. Recent triumphs, such as Upper Beach Manors and Upper Beach Townes, underscore their commitment to excellence. With The Vic Towns, Solotex Group continues to redefine urban living, setting new benchmarks for sophistication and lifestyle.
The Vic Towns offer an array of features and amenities designed to enhance residents' comfort, convenience, and lifestyle:
Exterior Features:
Interior Suite Features:
Kitchen:
Floor Coverings:
Bathrooms:
Safety and Security:
Electrical Fixtures:
Multi-media Technology:
| Model | Bed | Bath | SqFT |
|---|---|---|---|
| A109 | 1 | 2 | 620 |
| A201 | 3 | 2 | 968 |
| A206 | 3 | 2 | 1007 |
| B203 | 3 | 2 | 997 |
| A207 | 3 | 2 | 1039 |
| A114 | 3 | 2 | 1138 |
| B101 | 3 | 2 | 1145 |
| A224 | 3 | 2 | 1306 |
| A202 | 3 | 2 | 1269 |
| B205 | 3 | 2 | 1293 |
| A205 | 3 | 2 | 1293 |
| A203 | 3 | 2 | 1348 |
| A204 | 3 | 2 | 1366 |
| B206 | 3 | 2 | 1373 |
| B201 | 3 | 2 | 1375 |
| A208 | 3 | 3 | 1498 |
| B226 | 3 | 3 | 1575 |
| A222 | 3 | 3 | 1660 |
| A223 | 3 | 3 | 1861 |
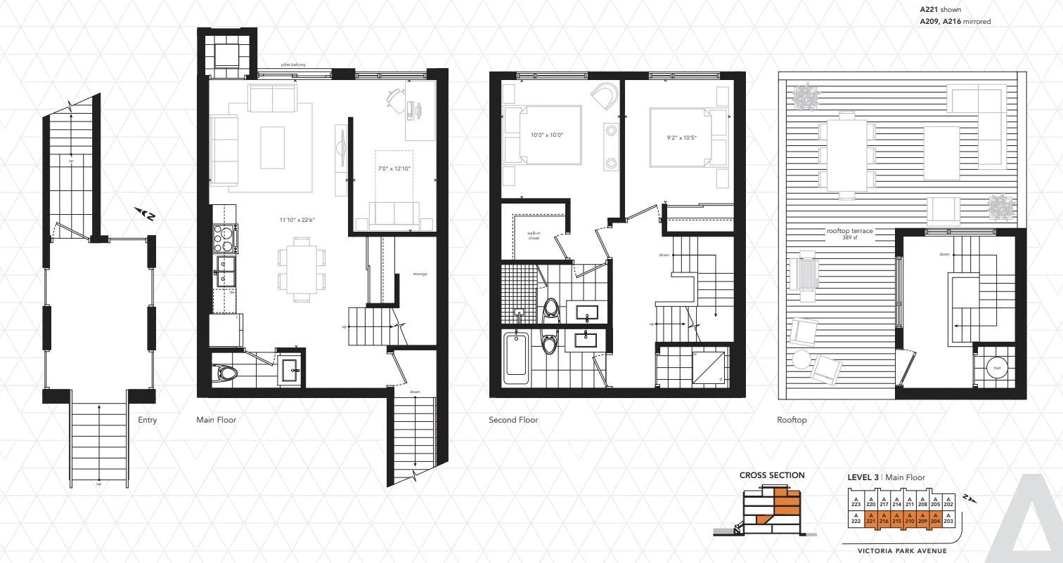
| A209 | 2 | 2.5 | 1368 |
| B217 | 2 | 2.5 | 1493 |
| C107 | 2 | 2 | 1128 |
| D109 | 2 | 2 | 1317 |














































| Plan | Suite Name | Suite Type | Bath | SqFT | Terrace | Exposure | Availability | |
|---|---|---|---|---|---|---|---|---|
|
A109 | 1 | 2 | 620 | 145 | - | - | Reserve Now |
|
A201 | 3 | 2 | 968 | - | - | - | Reserve Now |
|
A206 | 3 | 2 | 1007 | - | - | - | Reserve Now |
|
B203 | 3 | 2 | 997 | - | - | - | Reserve Now |
|
A207 | 3 | 2 | 1039 | - | - | - | Reserve Now |
|
A114 | 3 | 2 | 1138 | - | - | - | Reserve Now |
|
B101 | 3 | 2 | 1145 | - | - | - | Reserve Now |
|
A224 | 3 | 2 | 1306 | - | - | - | Reserve Now |
|
A202 | 3 | 2 | 1269 | - | - | - | Reserve Now |
|
B205 | 3 | 2 | 1293 | - | - | - | Reserve Now |
|
A205 | 3 | 2 | 1293 | - | - | - | Reserve Now |
|
A203 | 3 | 2 | 1348 | - | - | - | Reserve Now |
|
A204 | 3 | 2 | 1366 | - | - | - | Reserve Now |
|
B206 | 3 | 2 | 1373 | - | - | - | Reserve Now |
|
B201 | 3 | 2 | 1375 | - | - | - | Reserve Now |
|
A208 | 3 | 3 | 1498 | - | - | - | Reserve Now |
|
B226 | 3 | 3 | 1575 | - | - | - | Reserve Now |
|
A222 | 3 | 3 | 1660 | - | - | - | Reserve Now |
|
A223 | 3 | 3 | 1861 | - | - | - | Reserve Now |
|
A209 | 2 | 2.5 | 1368 | 389 | - | - | Reserve Now |
|
B217 | 2 | 2.5 | 1493 | 494 | - | - | Reserve Now |
|
C107 | 2 | 2 | 1128 | 337 | - | - | Reserve Now |
|
D109 | 2 | 2 | 1317 | 320 | - | - | Reserve Now |