Address
Harmony Road North, Oshawa, ON, L1H 0J9
Heights of Harmony East is a new townhome development by Minto Communities. Prices estimated to be starting from the $600,000+ and will feature approximately 168 units at 2 storeys. Heights of Harmony East is nearby Winchester Road East & Harmony Road North. The project is estimated to be completed in 2025 and will be located at 2460 Harmony Road North in the Kedron neighbourhood of Oshawa.
Prime Location: The community offers proximity to major highways, transit options, parks, schools, and everyday amenities, supporting strong connectivity and long-term residential appeal.
Architectural Design: The community includes a variety of architectural styles across its townhomes and single-family homes, with design details guided by master-planned development principles.
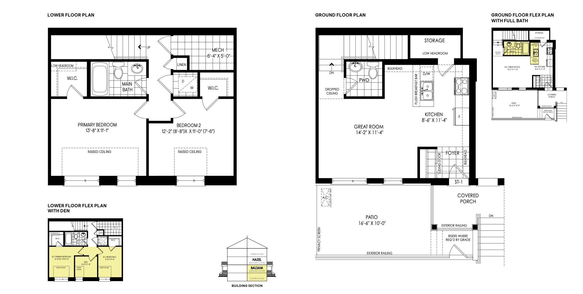
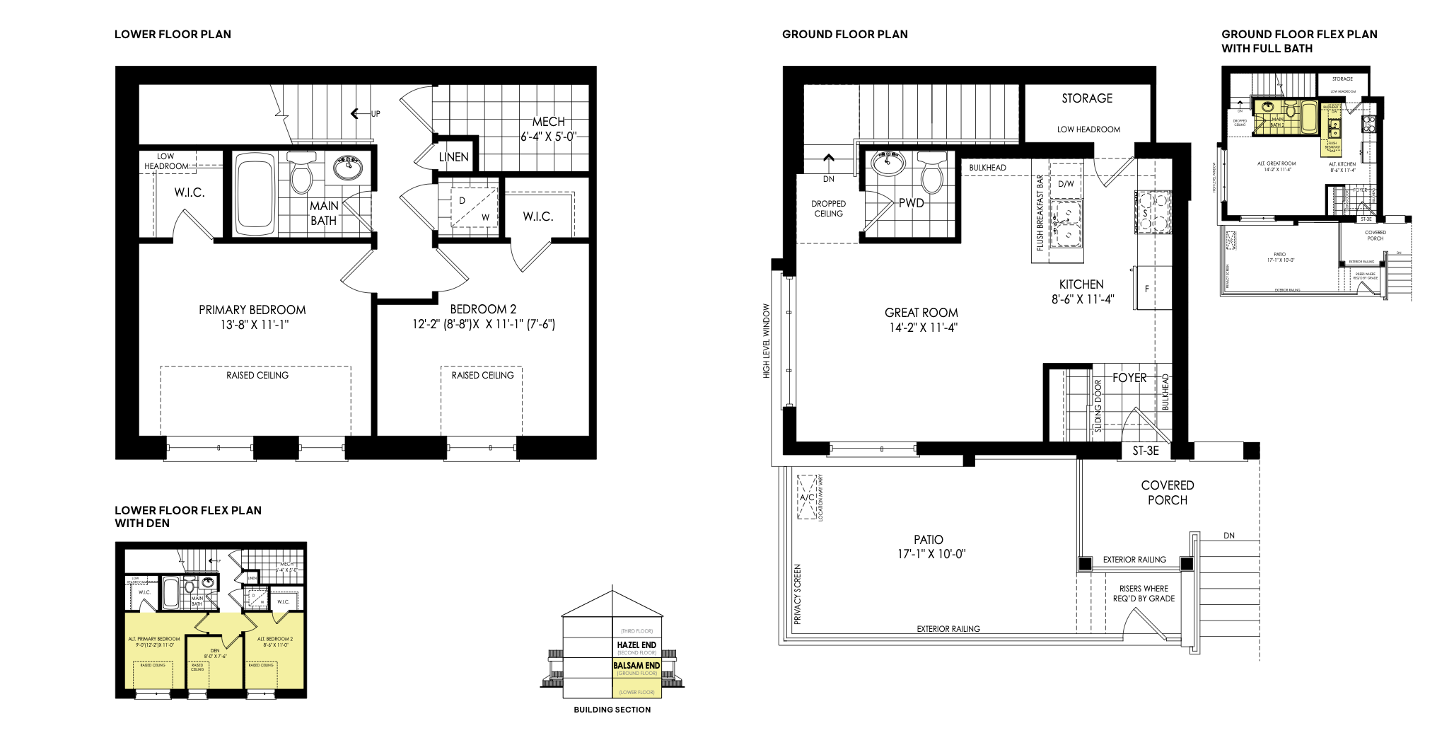
Unit Types and Layouts: The project offers back-to-back and rear-lane townhomes with 2–4 bedroom layouts, and single-family homes of various sizes.
Key Amenities: The community includes green spaces, a pond, lawns, and nature trails integrated with pedestrian walkways.
Premium Features: Homes feature ENERGY STAR® certification, water-efficient fixtures, heat recovery ventilation, and healthier interior materials.
Nearby Natural Features: The development is close to parks, trails, and natural open spaces, including connections to local trail networks.
Transit and Highway Access: The site has convenient access to Highways 407 and 401, Oshawa GO Bus and Train services, and regional transit options.
Neighbourhood Amenities: Surrounding services include retail, schools, restaurants, and community facilities within a walkable neighbourhood framework.
Sustainability Considerations: Sustainable elements include high performance building envelopes, efficient mechanical systems, and water-saving fixtures to reduce resource use.
Long-Term Value: The Heights of Harmony is designed as a master-planned community with durable construction standards and integrated neighbourhood amenities aimed at long-term livability and value.
2443 Harmony Road North, Oshawa, Ontario L1H 0J9, Canada
Harmony Road North, Oshawa, ON, L1H 0J9
Minto Communities, established in 1955, is a residential homebuilder with a long-standing focus on building well-constructed homes designed for long-term livability and value. The company approaches homebuilding with an emphasis on quality over volume, prioritizing thoughtful planning, durable materials, and consistent construction standards across its communities. Minto Communities integrates craftsmanship and functional design, with many features included as standard that are often considered upgrades by other builders. Its homes are planned to balance efficiency, comfort, and structural integrity, reflecting a disciplined and measured development approach. The builder maintains a commitment to durability and performance, drawing on decades of experience in residential construction. This consistency has shaped Minto Communities’ reputation for delivering homes intended to stand the test of time.
The Heights of Harmony is a new master-planned community located at Harmony Road North and Winchester Road East in North Oshawa. The development features thoughtfully designed townhomes and single-family homes integrated with green spaces and pedestrian-friendly walkways. Residents benefit from convenient access to highways, transit, and local amenities.
Sophisticated Residences:
Unit Options: Offers back-to-back and rear-lane townhomes with 2–4 bedroom layouts and single-family homes of various sizes.
Interior Design: Homes include spacious layouts, natural light from large windows, and quality finishes.
Building Amenities:
Green Spaces: The community incorporates landscaped areas, a tranquil pond, and nature trails.
Walkways: Pedestrian-friendly paths connect homes to community features and outdoor spaces.
Exclusive Features: Select units include enhanced privacy and elevated outdoor spaces.
Transit and Accessibility:
Highways: Minutes from Highways 407 and 401 for regional connectivity.
Public Transit: Close to Durham College GO Bus Station, Oshawa GO Bus Station, and Oshawa GO Train Station.
Neighbourhood Amenities:
Shopping and Dining: Nearby retail options include HomeSense, Sport Chek, Winners, Canadian Tire, and local cafés and boutiques.
Education: Access to public, private, and Montessori schools within a short drive.
Natural Surroundings:
Lakefront Access: Proximity to Lake Ontario waterfront, trails, beaches, and green spaces.
Recreation: Connected to the Waterfront Trail and other outdoor leisure areas.
Sustainability and Long-Term Value:
Sustainable Design: The community emphasizes eco-friendly practices, including durable construction and thoughtfully planned green spaces.
Investment Potential: Designed as a cohesive master-planned neighborhood, offering long-term livability and value for residents.
| Model | Bed | Bath | SqFT | Price |
|---|---|---|---|---|
| Balsam | 2 | 1.5 | 1,092 | - |
| Balsam End | 2 | 1.5 | 1,112 | - |
| Hazel | 2 | 1.5 | 1,279 | - |
| Hazel End | 2 | 1.5 | 1,294 | - |
| Laurel 2 | 3 | 3.5 | 1,891 | $859,900 |
| Laurel 3 | 3 | 3.5 | 1,913 | $854,900 |
| Laurel 4 End | 3 | 3.5 | 1,997 | $879,900 |
| Laurel 5 End | 3 | 3.5 | 2,000 | $874,900 |
| Laurel Corner | 3 | 3.5 | 2,079 | $849,900 |
| Pine 1 | 2 | 2.5 | 1,439 | $684,900 |
| Pine 2 | 2 | 2.5 | 1,466 | $734,900 |
| Pine 3 | 2 | 2.5 | 1,463 | $739,900 |
| Pine 4 End | 3 | 2.5 | 1,484 | $761,900 |
| Pine Corner | 2 | 2.5 | 1,628 | $834,900 |




























| Plan | Suite Name | Suite Type | Bath | SqFT | Price | Terrace | Exposure | Availability | |
|---|---|---|---|---|---|---|---|---|---|
|
Balsam | 2 | 1.5 | 1,092 | - | - | - | - | Reserve Now |
|
Balsam End | 2 | 1.5 | 1,112 | - | - | - | - | Reserve Now |
|
Hazel | 2 | 1.5 | 1,279 | - | - | - | - | Reserve Now |
|
Hazel End | 2 | 1.5 | 1,294 | - | - | - | - | Reserve Now |
|
Laurel 2 | 3 | 3.5 | 1,891 | $859,900 | - | - | - | Reserve Now |
|
Laurel 3 | 3 | 3.5 | 1,913 | $854,900 | - | - | - | Reserve Now |
|
Laurel 4 End | 3 | 3.5 | 1,997 | $879,900 | - | - | - | Reserve Now |
|
Laurel 5 End | 3 | 3.5 | 2,000 | $874,900 | - | - | - | Reserve Now |
|
Laurel Corner | 3 | 3.5 | 2,079 | $849,900 | - | - | - | Reserve Now |
|
Pine 1 | 2 | 2.5 | 1,439 | $684,900 | - | - | - | Reserve Now |
|
Pine 2 | 2 | 2.5 | 1,466 | $734,900 | - | - | - | Reserve Now |
|
Pine 3 | 2 | 2.5 | 1,463 | $739,900 | - | - | - | Reserve Now |
|
Pine 4 End | 3 | 2.5 | 1,484 | $761,900 | - | - | - | Reserve Now |
|
Pine Corner | 2 | 2.5 | 1,628 | $834,900 | - | - | - | Reserve Now |