Address
800 Hydro Road, Mississauga
Aura Lakeview Village is a new luxury townhome development by Caivan. Prices estimated to be starting from $500,000. Aura Lakeview Village is nearby Long Branch GO and the Lakeshore Park, the project is estimated to be completed in 2027 and will be located on 800 Hydro Road at the Lakeview Park neighbourhood in Mississauga.
800 Hydro Road, Mississauga, Ontario L5E 1H3, Canada
800 Hydro Road, Mississauga
Caivan is a multi-disciplinary homebuilder committed to delivering exceptional homes through high-caliber finishes, unparalleled construction quality, and a personalized buying experience. Backed by the Caivan 360 commitment, the team continuously reimagines what’s possible in new home design and performance, setting industry-leading standards supported by rigorous quality assurance programs and a 10,000-point inspection process. Powered by the Advanced Building Innovation Company (ABIC), Caivan leverages advanced manufacturing, automation, and building science to create better-built, energy-efficient homes while minimizing environmental impact through waste reduction and sustainable community planning.
AURA Lakeview Village is a thoughtfully planned residential community located in General Trias, Cavite, near Arnaldo Highway. The development offers contemporary homes within a serene suburban setting, designed to support everyday comfort and long-term living. Its layout emphasizes open space, functionality, and a family-oriented lifestyle environment.
Sophisticated Residences
Community Amenities
Open Green Spaces:
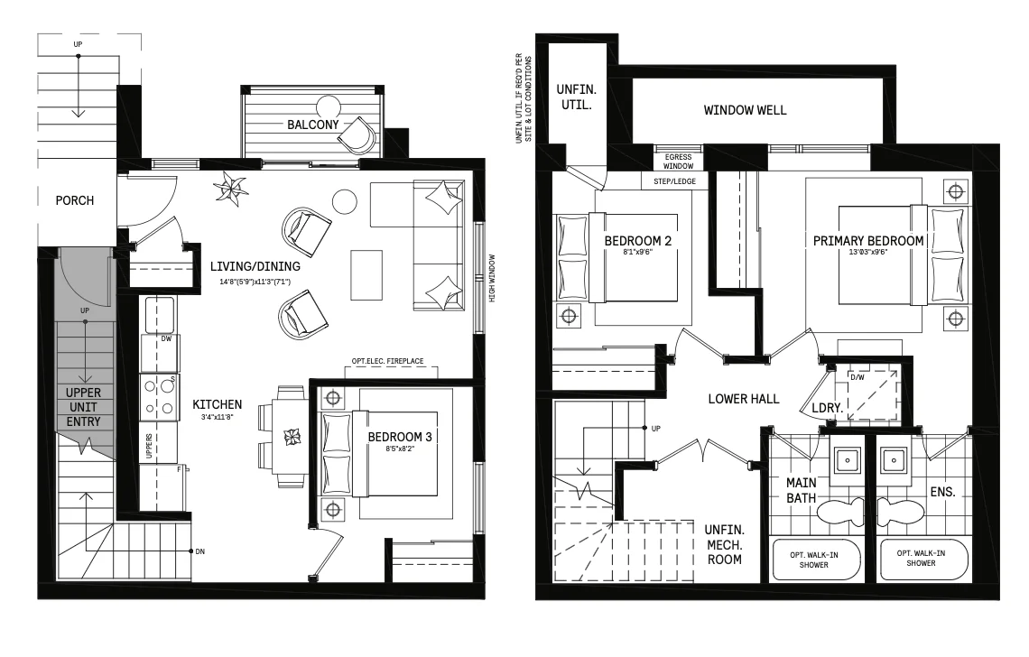
| Model | Bed | Bath | SqFT | Price |
|---|---|---|---|---|
| Halo End | 2 | 1.5 | 977 | $639,990 |
| Echo Main | 2 | 1.5 | 811 | $544,990 |
| Echo End | 2 | 1.5 | 836 | $574,990 |
| Halo Upper | 2 | 1.5 | 957 | $639,990 |
| Lux Main | 3 | 2 | 986 | $619,990 |
| Nova Upper | 3 | 2 | 1,138 | $709,990 |
| Prism Main | 2 | 1.5 | 986 | $600,876 |














| Plan | Suite Name | Suite Type | Bath | SqFT | Price | Terrace | Exposure | Availability | |
|---|---|---|---|---|---|---|---|---|---|
|
Halo End | 2 | 1.5 | 977 | $639,990 | - | - | - | Reserve Now |
|
Echo Main | 2 | 1.5 | 811 | $544,990 | - | - | - | Reserve Now |
|
Echo End | 2 | 1.5 | 836 | $574,990 | - | - | - | Reserve Now |
|
Halo Upper | 2 | 1.5 | 957 | $639,990 | - | - | - | Reserve Now |
|
Lux Main | 3 | 2 | 986 | $619,990 | - | - | - | Reserve Now |
|
Nova Upper | 3 | 2 | 1,138 | $709,990 | - | - | - | Reserve Now |
|
Prism Main | 2 | 1.5 | 986 | $600,876 | - | - | - | Reserve Now |